

Описание
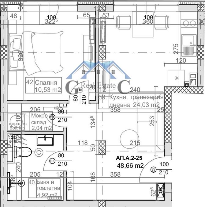
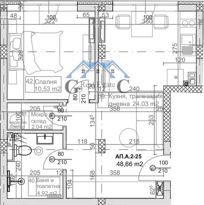
113000 евро Реф.№ 25073840 "Галя Консулт" продава двустаен апартамент 64м2, ет.3/7, 2025г. Чиста площ 103м2. Състои се от: дневна с кухня и трапезария 24м2, спалня 10,53м2, кабинет, бани с тоалет 4,92м2, мокро помещение 2м2. Издава се по БДС. Предлага се гъвкава схема на разсрочено плащане. Могат да се закупят паркоместа и гаражи, разположени на четири нива с четири подхода за лесен достъп към жилищната част. Комплексът ще бъде от затворен тип с контрол на достъпа с изградена чип система. Модерен дизайн и качествено строителство. Ще има алеи за разходка, детски кътове, зона за спорт и за отдих. Разположен е в к.к. Слънчев ден, в к.к. Св.Св.Константин и Елена и в непосредствена близост до автобусни спирки, магазини и алеи за отдих. Доказан строител. Агенцията съдейства за отпускане на банков кредит при НАЙ-ДОБРИ условия за своите клиенти. За огледи и информация , моля цитирайте посоченият код на телефон : 0 8 9 9 8 9 2 8 4 6Допълнителна информация
- Склад / Хранилище
- Асансьор
- Просторен
- Вътрешно стълбище
- Гледка
- Двор
- Дограма: PVC
- Блиндирана врата
- Тип път: Асфалт
- Тип под: Промишлени настилки
- Светъл
Код 25073840
