




Описание
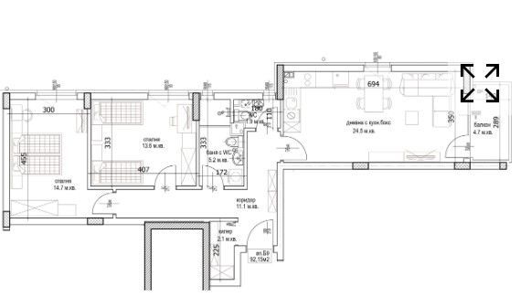
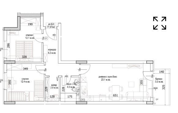
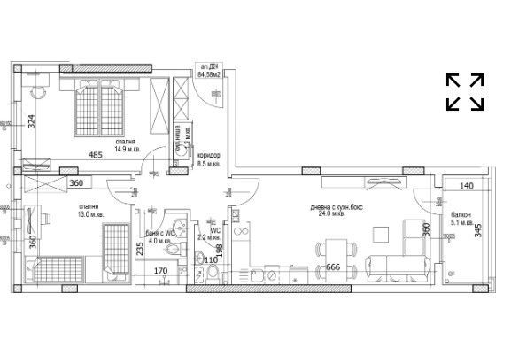
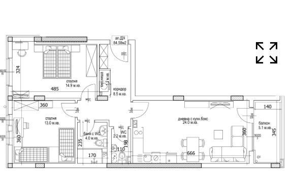
134000 евро - 201000 евро Реф. Номер 25103890 ”Галя Консулт” продава тристайни апартаменти от 94,73м2 до 194,75м2, на различни етажи, 2028г. Издават се по БДС. Депозит 5000 евро. Девететажна сграда. Паркирането е осигурено чрез подземни гаражи и външни паркоместа от 15000 евро - 12,50м2 до 27500 евро - 33м2. Сградата е характерна със своята идентичност, построена по най-модерните технологии и с гарантирано качество. Строителна фирма с 25 годишен опит и 27 проекта. Сградата е ориентирана север/юг, а вход Д - изток/запад. Намират се в едни от най-желаните за живеене райони на морската столица и разполагат с различни екстри. Подземният паркинг с гаражи и паркоместа са достъпни директно чрез асансьорите на сградата. Покривът на сградата е плосък и изпълнен с висок клас хидро- и топлоизолация, отговарящ на актуалните енергийни стандарти. Решението осигурява защита и ефективност през цялата година. Всеки вход разполага със съвременен асансьор, който осигурява лесен и безшумен достъп до всички етажи, включително подземните гаражи. Това гарантира удобство както за семейства с деца, така и за хора с намалена подвижност. Фасадата на сградата е изградена с комбинация от модерни материали, които осигуряват енергийна ефективност и устойчивост. Контрастът между топли и неутрални тонове създава естетически баланс, а широките балкони и големите прозорци осигуряват максимална светлина във всеки апартамент. В сградата ще има търговски обекти. Начин на плащане: 20% при подписване на Предварителен договор, 20% пи готова покривна плоча на четвърти етаж, 40% при подписан Акт обр.14, 20% при подписан Акт обр.15. Има и други начини на плащане при други цени. Намира се в Кайсиева градина. Агенцията съдейства за отпускане на банков кредит при НАЙ-ДОБРИ условия за своите клиенти. За огледи и информация , моля цитирайте посоченият код на телефон : 0 8 9 9 8 9 2 8 4 6Допълнителна информация
- Склад / Хранилище
- Асансьор
- Просторен
- Вътрешно стълбище
- Гледка
- Двор
- Дограма: PVC
- Блиндирана врата
- Ориентация: Меридиан
- Тип път: Асфалт
- Изглед към улица
- Тип под: Промишлени настилки
- Светъл
Код 25103890
